Looking for Land Registry Compliant Lease Plans in London?
- Trusted by solicitors & property developers
- We use the most advanced software
- More than a decade of experience
Request your lease plan
Your lease plan in 3 simple steps
1. Request your quote
Reach out to our team with your property details. We’ll provide a clear, fixed-price quote and arrange a convenient time for your on-site survey.
2. Professional site survey
Our experienced surveyors visit your property to capture all the measurements required for a Land Registry compliant lease plan. We ensure every detail is recorded with absolute precision.
3. Receive your digital lease plan
Once your plan is ready, you’ll receive a PDF version by email for your review and approval. Your lease plan will be fully compliant and ready for legal submission.
Please note: Delivery times may vary depending on property complexity and demand. We always aim to complete your lease plan as promptly as possible, without compromising on quality.
TYPES OF LEASE PLANS WE CAN DELIVER
Residential Lease Plans
Precisely defined lease plans for flats, apartments, maisonettes and houses, clearly showing the demise and any shared areas.
Commercial Lease Plans
Detailed documentation for shops, offices, industrial units and mixed-use properties, including clear boundary definitions.
Land Registry Compliant Plans
Meticulously crafted plans that fully adhere to all HM Land Registry guidelines and requirements.
Title Plans
Accurate representations of freehold boundaries for property sales, purchases, and registrations.
Deed Of Variation Plans
Specialised plans showing modifications to existing lease arrangements.
Lease Renewal Plans
Updated documentation for lease extensions and renewals, ensuring continued compliance.
WHAT OUR CUSTOMERS SAY






Some Examples of our delivered lease plans
Lease Plan Pricing Made Simple
Get transparent, all-inclusive pricing on our Land Registry compliant lease plans.
No VAT, no hidden costs-just expert service and fast turnaround.
Residential Lease Plan
For single flats, houses, or apartments. Includes expert site survey and Land Registry compliant plan.
Starting from £199
Commercial Lease Plan
Perfect for shops, offices, or mixed-use spaces. Professional survey and compliant documentation included.
Starting from £299
Multiple Residential Lease Plans in One Location
Ideal for blocks of flats or multiple units at the same address.
Starting from £209
Multiple Commercial Lease Plans in One Location
For business centres or multiple commercial units at one site.
Starting from £259
Urgent Lease Plan Service
Need your plan fast? Jump the queue and receive your plan as a priority.
Final price + £80
Get a Custom Lease Plan Quote
WHY CHOOSE ACCURATE MBS FOR LEASE PLANS IN LONDON?
If you’re seeking reliable lease plan services in London, Accurate MBS is your trusted specialist. We excel in producing precise, Land Registry compliant lease plans that ensure smooth property transactions and legal compliance. Here’s why clients throughout London consistently choose us:
GUARANTEED COMPLIANCE
Every lease plan we produce strictly adheres to Land Registry requirements, minimising the risk of rejection and delays. Our deep understanding of property documentation standards ensures your plans will be accepted first time.
UNMATCHED PRECISION
Our team employs state-of-the-art measuring equipment to create highly accurate lease plans, providing clarity on property boundaries and eliminating potential disputes.
RAPID TURNAROUND
We understand that property transactions often operate on tight timelines. Our efficient processes deliver compliant lease plans within days, not weeks, keeping your property deals moving forward.
TRANSPARENT PRICING
Our straightforward fixed pricing ensures you receive high-quality lease plans without hidden costs or unexpected fees, making budgeting straightforward and stress-free.
WE STRIVE TO BE
Your Trusted Partner
We aim to be the foremost property documentation specialist in London, delivering exceptional service and unparalleled expertise in lease plans and property surveys.
Precision-Focused
Our commitment is to provide meticulous attention to detail in every plan we create, ensuring complete accuracy and compliance with all regulatory requirements.
Value-Driven
We believe in fostering relationships built on trust, transparency, and excellence, delivering service that exceeds expectations at every stage of the process.
Questions we get often about lease plans (FAQ)
Most frequently asked questions and our answers to them.
A lease plan is a detailed, scaled drawing that defines the boundaries and layout of a leasehold property. Unlike a standard floor plan, a lease plan is specifically designed to meet Land Registry requirements for legal property registration.
You need a lease plan when registering a lease that lasts seven years or longer, when selling a leasehold property, when creating a new lease, or when modifying an existing lease through a deed of variation.
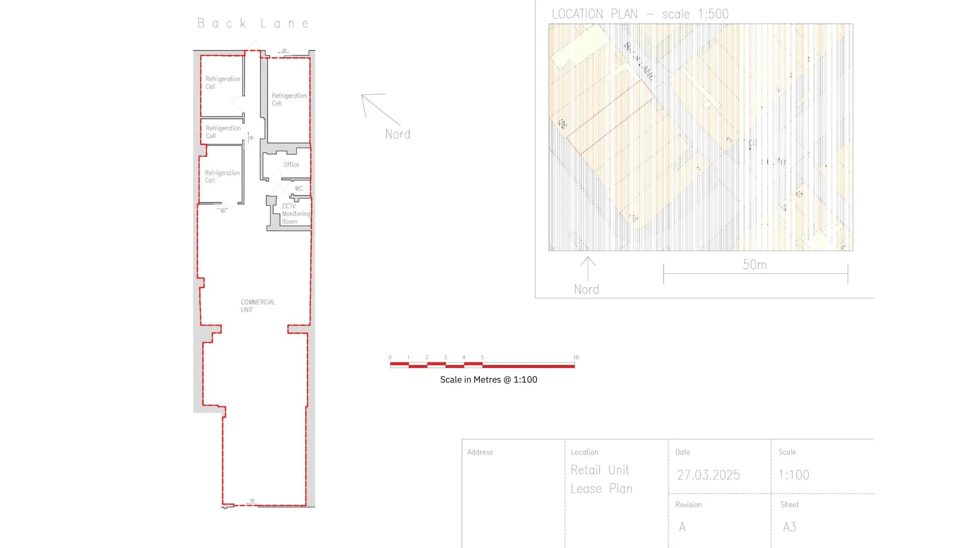
A compliant lease plan must include specific elements: accurate scale (typically 1:100-1:500), a north point indicator, clear boundary markings, sufficient detail to identify the property on Ordnance Survey maps, a metric scale bar, and appropriate colouring to distinguish different areas.
For standard residential properties, we typically deliver completed lease plans within 3-5 working days from the site visit. More complex commercial properties may require 5-7 working days. Express services are available when needed.
To provide an accurate quote, we need the property address, type of property (residential/commercial), approximate size, any existing plans or documentation, and your timeframe requirements.
While a floor plan shows the interior layout of a property, a lease plan specifically defines the legal boundaries of the leasehold and must comply with Land Registry standards. Lease plans often include additional elements like demise boundaries and shared areas.
Our lease plans offer transparent, all-inclusive pricing with no VAT or hidden costs. Residential lease plans start from £199 for single flats, houses, or apartments, including expert site survey and Land Registry compliant documentation. Commercial lease plans begin at £299, perfect for shops, offices, or mixed-use spaces with professional survey and compliant documentation included.
For multiple properties at the same location, we offer competitive rates: multiple residential lease plans start from £209, ideal for blocks of flats or multiple units, while multiple commercial lease plans begin at £259 for business centres or multiple commercial units at one site.
We also provide an urgent lease plan service for those who need their plans fast, with a final price plus £80 to jump the queue and receive priority processing. All pricing varies based on property size, complexity, and urgency requirements, and we always provide a fixed quote before beginning work.
In some cases, if accurate and detailed existing floor plans are available, we can create lease plans without a site visit. However, for maximum accuracy and compliance, we generally recommend an on-site measurement survey.
Get Your Lease Plan Quote
At Accurate MBS, we value your trust. Once you’ve submitted your request, our team will carefully review your requirements and send a fixed-price quote to keep everything transparent.
When you’re ready, we’ll book a site visit to gather the exact measurements we need to deliver a detailed, Land Registry compliant lease plan. From start to finish, we’re here to support your property transaction with precision and professionalism.
